Kaktus - Autonomous living

Scroll

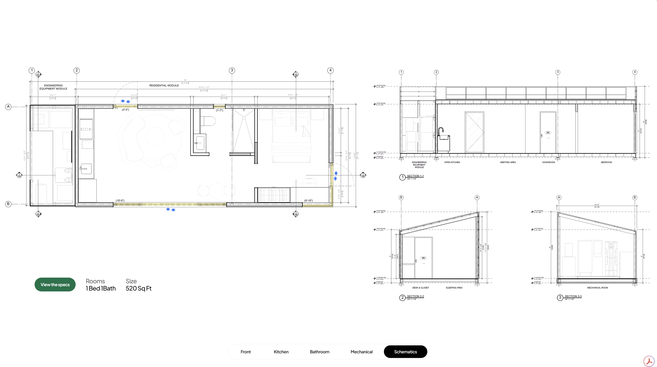
Project Cactus pushes that systems thinking even further, treating housing not simply as shelter but as autonomous infrastructure. Built around a triple-net-zero model, the concept integrates energy, water, and waste systems—solar generation, energy storage, geothermal conditioning, rainwater harvesting, water recycling, atmospheric water generation, and AI-based controls—into a single prefabricated living system. The ambition is not only to reduce environmental impact, but to create a dwelling that can operate with far less dependence on conventional utilities.

Designed for deserts, forests, mountains, islands, and disaster-affected contexts, Project Cactus envisions resilient living in places where infrastructure is limited or unstable. It marks a shift from modular as a construction method to modular as a complete environmental system compact, intelligent, and ready to stand on its own.

Project Cactus let me work at the intersection of product development, sustainability, and systems thinking. In an executive and visionary role for the product, I helped bring together the vision, partnerships, and internal coordination for a triple net-zero modular home designed to integrate energy, water, and waste into a single off-grid-ready platform. Solar cladding and roof panels, geothermal heating and cooling, energy storage, rainwater harvesting, water recycling, atmospheric water generation, and AI-based controls were conceived as one ecosystem rather than a collection of add-ons.

What makes this project meaningful to me is that it pushes modular beyond construction and into resilience. Working with the team, I helped shape a housing concept intended for remote, infrastructure-limited, and disaster-affected settings, where speed, self-sufficiency, and intelligent performance matter just as much as the building itself.

Previous
Previous

ikkonic